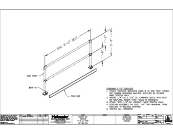
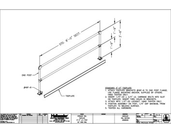
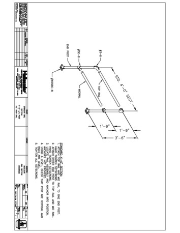
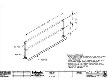
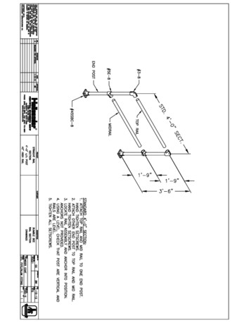
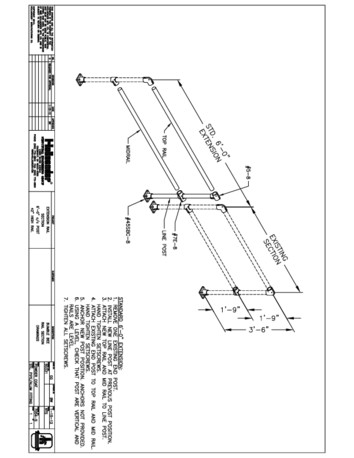
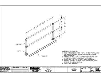
Use our part drawings to help you during the design phase of your project. If you need additional information please feel free to contact our engineering staff at 800-772-8800.